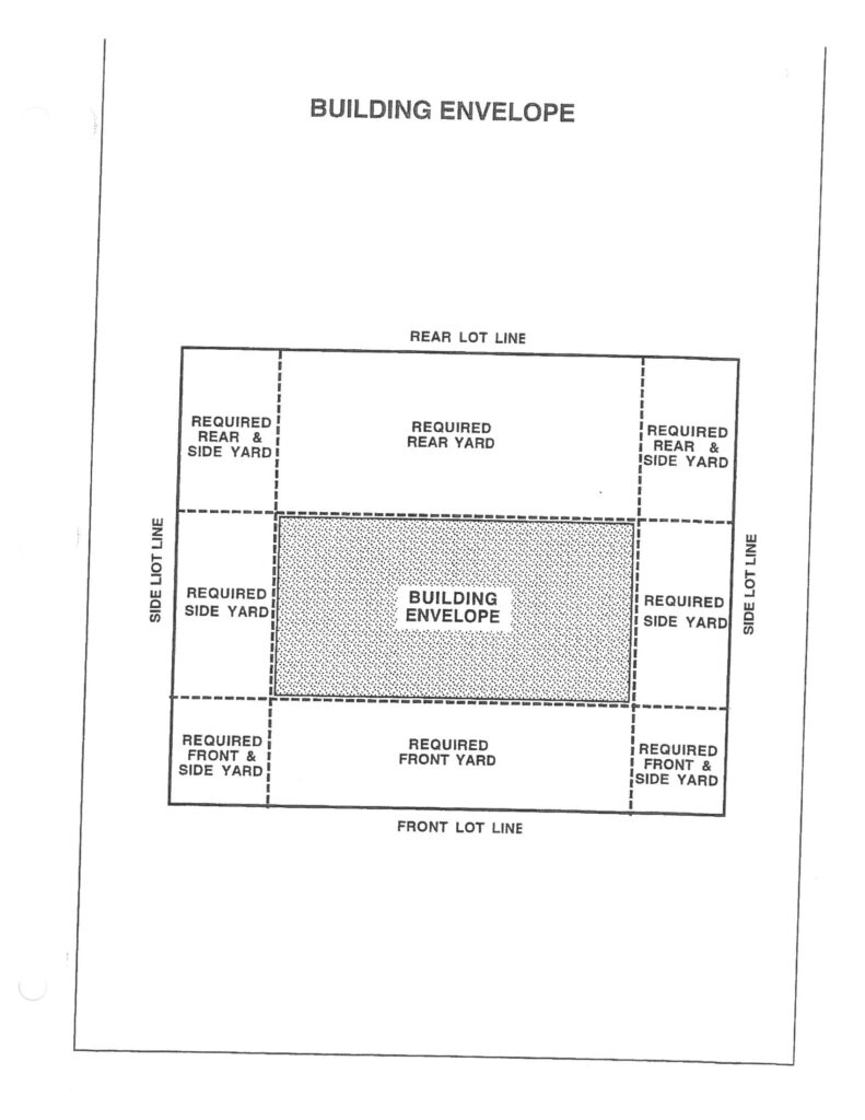
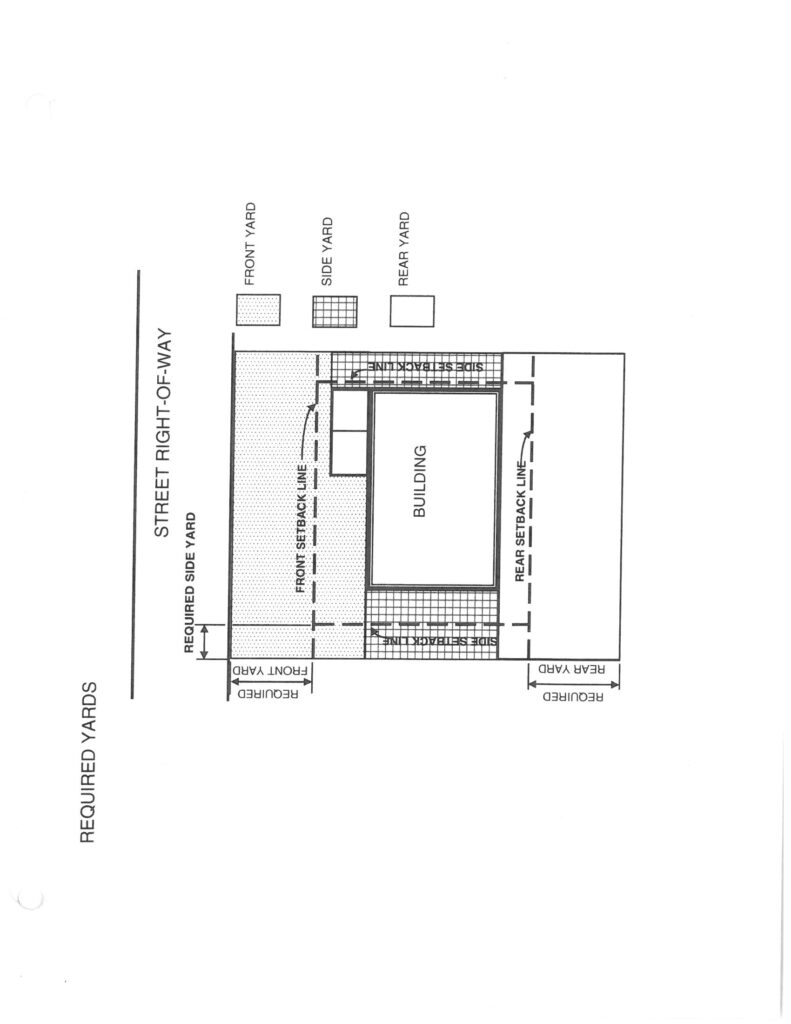
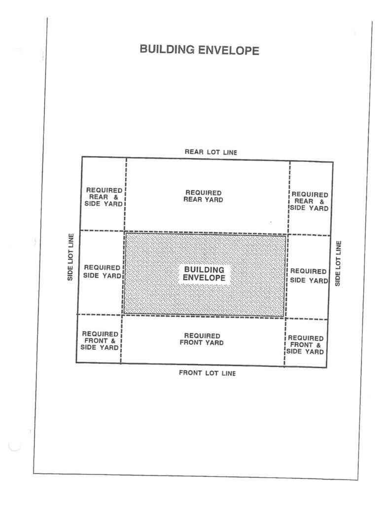
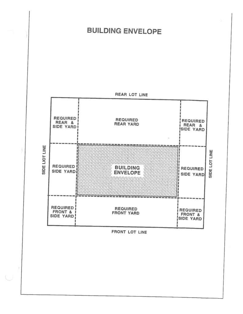
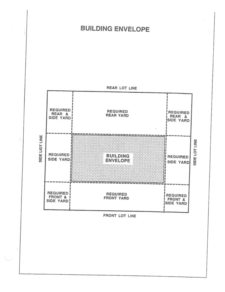
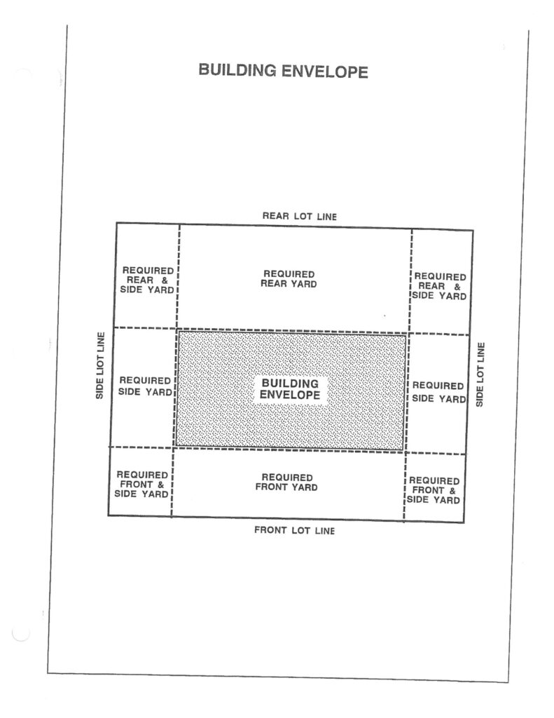
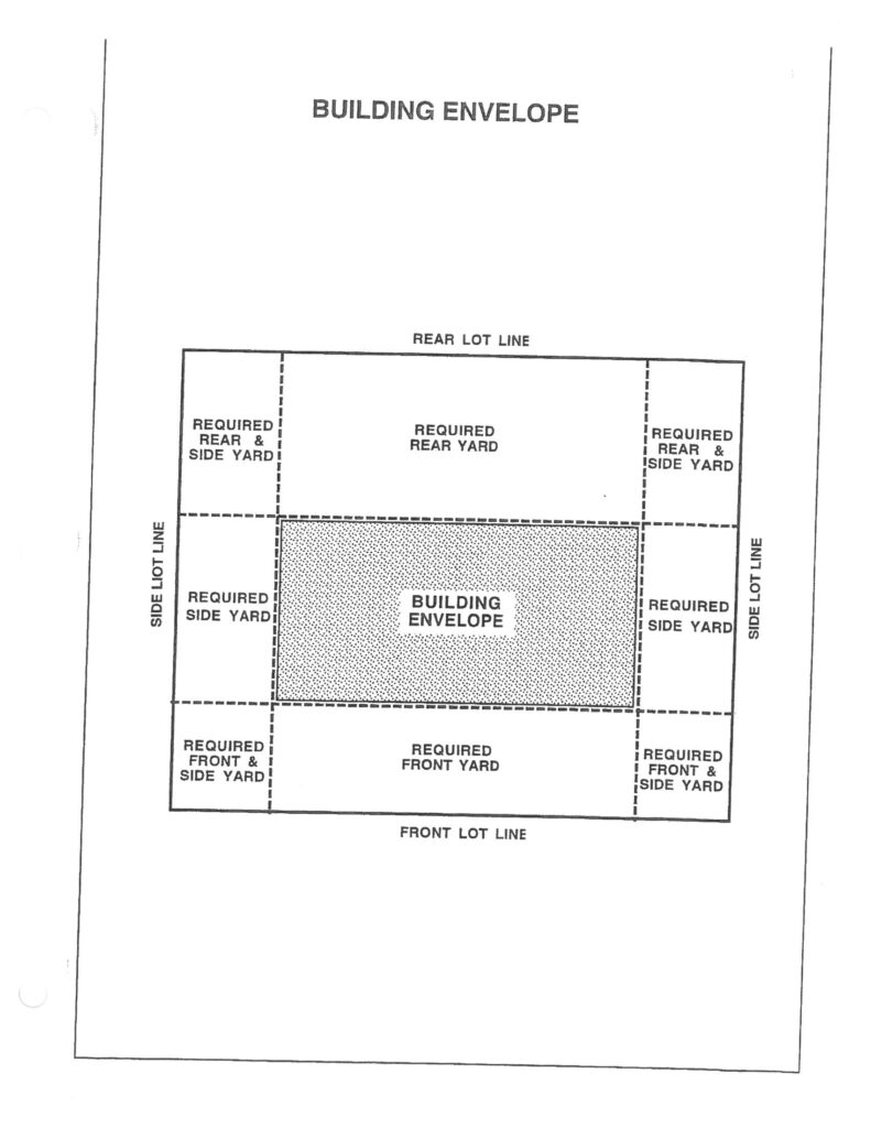
5735 Wales Ave NWJackson Township, Ohio 44646Telephone: 330-832-8023Fax: 330-832-5936Office HoursM-F: 8:00am - 4:30pm Important Downloads Zoning Fee Schedule – Effective 4-13-23 Street List – 2/19/2026 Comprehensive Plan – Adopted Guide to Development Zoning Resolution Book Effective 7-10-2025 Electronic submission of Zoning Applications Transient Vendor Legislation Jackson Township Zoning Map 2026 Zoning Hearing Schedule Property Maintenance Code Effective 6-13-2024 Zoning Illustration Examples Illustration of Building Envelope Illustration and Definition of Yard Illustration of Building Height Illustration of Required Yards